Tiel – Gerestein 8
Kenmerken
Algemeen
- Koopprijs
- € 465.000,- k.k.
- Status
- Onder bod
- Bouwjaar
- 1982
- Soorten
- Aangebouwd steen
- Perceel
- 349 m2
Omschrijving
Aan de Gerestein 8 in Tiel staat deze royale en praktische 2-onder-1-kapwoning te koop. De woning ligt in een rustige en kindvriendelijke buurt, nabij winkelcentrum Rauwenhof, scholen en diverse voorzieningen. Met een garage, eigen oprit, vijf slaapkamers, 8 zonnepanelen en een uniek perceel van maar liefst 349 m2 is dit een heerlijk gezinshuis met volop mogelijkheden.
Indeling
Begane grond
Bij binnenkomst in de hal tref je de meterkast, toilet met fonteintje en de trapopgang naar de eerste verdieping. De lichte woonkamer heeft een achterentree en een praktische provisiekast. Aan de voorzijde bevindt zich de open keuken, voorzien van diverse inbouwapparatuur zoals een 5-pitsgasfornuis, afzuigkap, magnetron, oven, koel-vriescombinatie en vaatwasser.
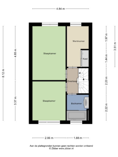
Eerste verdieping
De overloop geeft toegang tot drie slaapkamers en de badkamer, welke is uitgerust met een ligbad/douchecombinatie en een wastafelmeubel.
Tweede verdieping
Op de tweede verdieping bevindt zich een ruime overloop met witgoedaansluitingen, cv-opstelling en een luik naar de vliering. Daarnaast zijn er nog twee slaapkamers met bergruimte.
Buiten geniet je van de royale tuin met een lengte van circa 16 meter op het oosten, met veel privacy, een groen gazon en bergingen. Aan de voorzijde biedt de oprit ruimte voor het parkeren van meerdere auto’s en is er een garage met roldeur aanwezig. De garage is ideaal te gebruiken als hobbyruimte of voor het parkeren van motoren/fietsen.
De woning is gelegen op fietsafstand van diverse voorzieningen. Zoals winkelcentrum Rauwenhof, sportverenigingen, scholen en het stadscentrum van Tiel. Binnen enkele minuten rijd je de A15 richting Nijmegen-Rotterdam op.
Aanvullende informatie:
– Bouwjaar 1982;
– Gebruiksoppervlakte wonen 104 m2;
– Overige inpandige ruimte 23 m2;
– Gebouw gebonden buitenruimte 3 m2;
– Externe bergruimte 7 m2;
– Energielabel B;
– Dubbel glas, muur-/dak-/vloerisolatie aanwezig;
– Daalderop cv-ketel uit 2014;
– Diverse rolluiken aanwezig.
Kortom: een ruim en compleet huis, ideaal voor (grote) gezinnen die comfortabel willen wonen in een rustige, groene omgeving met voorzieningen binnen handbereik.
Brochures
Download media



Adresgegevens
Achterstraat 30
4054 MT Echteld
Email: info@buddingbv.nl
Tel: 0344 – 64 16 08
Openingstijden kantoor:
Maandag t/m vrijdag
08.30 uur t/m 17.00 uur
Openingstijden
Postkantoor
Maandag t/m vrijdag
09.00 - 12.00 en 13.00 - 16.00 uur
RegioBank
Maandag t/m vrijdag
09.00 - 12.00 en 13.00 - 16.30 uur



